Formalizada a cesión a Sionlla Biotech da parcela para a construción do Biopolo
O alcalde de Santiago, Xosé Sánchez Bugallo, asinou esta mañá a formalización da cesión da parcela para a construción e posta en funcionamento do Centro de Servizos Innovadores para Empresas Biotecnolóxicas, o Biopolo, cos representantes de Sionlla Biotech, José Fernández Alborés e Ramón Lois Lorenzo. No acto tamén estivo presente a concelleira de Urbanismo, Mercedes Rosón.
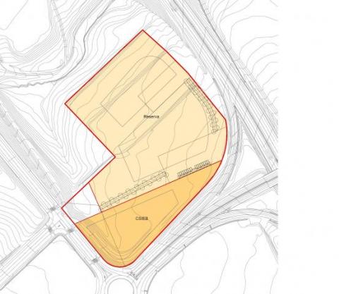
Co acto celebrado hoxe formalízase a cesión da parcela denominada CSIEB, con forma de triángulo obtusángulo redondeado no vértice sur. Destinada a equipamento e de natureza demanial (ben de dominio público), conta con 10.233 metros cadrados de superficie e 3.000 metros cadrados de edificabilidade máxima. O seu valor catastral é de 90.943,61 euros.
A cesión da parcela a Sionlla Biotech foi acordada na Xunta de Goberno de 2 de agosto de 2021 por un prazo de 25 anos prorrogables, por mutuo acordo e previa solicitude, para que se destine á construción e posta en funcionamento do Centro de Servizos Innovadores para Empresas Biotecnolóxicas nas condicións que rexen a convocatoria a subvención do IGAPE.
Nesa mesma sesión, o executivo municipal acordou conceder a Sionlla Biotech licenza de obras para a construción do devandito centro, o CSIEB, que estará cualificado na ordenanza 5 como equipamento comunitario e de nova construción. A edificabilidade sería de 2.927,92 metros cadrados e a altura de 9 metros, con baixo e unha planta, segundo explicou o alcalde. O orzamento de execución material é de 3.939.229,51 euros. Localizaríase na AV. de Murcia, número 3, no Polígono da Sionlla, e contaría cun prazo de inicio de obra de seis meses; e tres anos para o seu remate.
O proxecto empresarial Sionlla Biotech, sociedad limitada da que forman parte a Sociedade para a Promoción de Iniciativas Empresariais Innovadoras, S.L. (UNINOVA SL) , a Cámara Oficial de Comercio, Industria e Navegación de Santiago de Compostela e a Asociación Área Empresarial do Tambre, cunha participación respectiva do 14, 10 e 76%, foi constituída para a realización do Centro de Servizos Innovadores para Empresas Biotecnolóxicas (Polo de Innovación en Biotecnoloxía-CSIEB), no marco da convocatoria da Xunta de Galicia de axudas ao investimento para infraestruturas locais (Programa de centros de fabricación avanzada), cofinanciadas polo Fondo Europeo de Desenvolvemento Rexional, ao abeiro do programa operativo Feder Galicia 2014-2020.







